About
About Norris
Our Team
Cabinet Shop
MOD Experience
eBuilt
Clayton Built
Homes
Decor
Cabinets
Subway Tile
Countertops
Flooring
Paint
Roofing
Shower Tile
Siding
Options
Bathroom
Exterior
Kitchen
Laundry Room
Living Areas
Contact
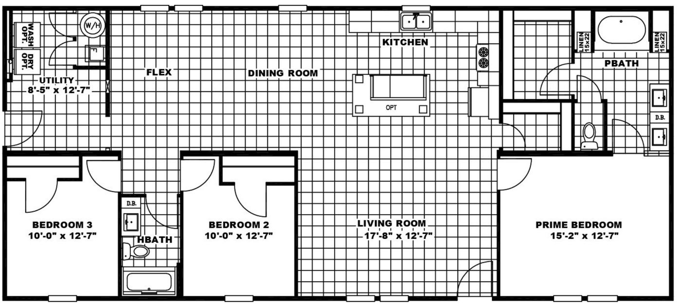
THE ELITE 60
4 beds • 2.0 baths • 1,580 sq. ft.
Floor Plan
Download Home PDF
Photos
*The home series, floor plans, photos, renderings, specifications, features, materials and availability shown will vary by retailer and state, and are subject to change without notice.